Minggu, 26 Juli 2020

Fantastico Armadio Stradale Enel

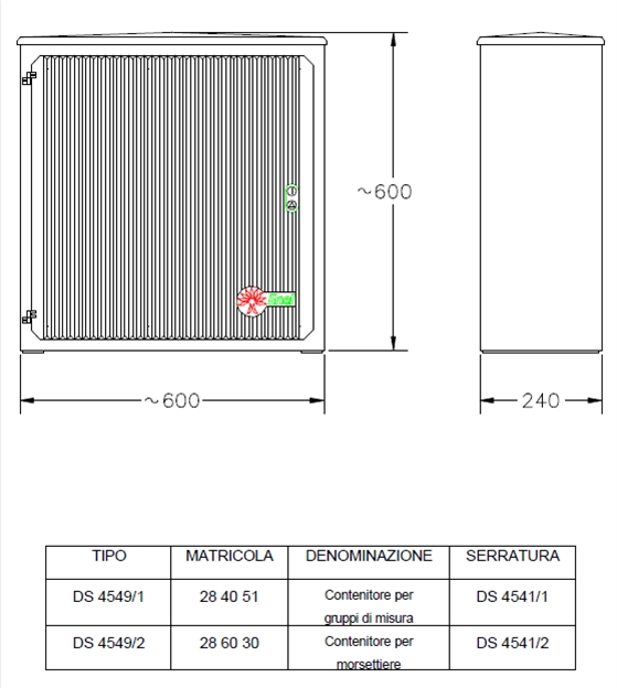
Armadio Stradale Enel.

KIT ARMADIO C3M + BASAMENTO
KIT ARMADIO C3M + BASAMENTO (Ryan Garner)

SPORTELLO CASSETTA ARMADIO ENEL

Quadri acciaio inox per ambienti alimentari e farmaceutici ...

Conchiglia S.p.A.

Serratura per contenitore armadio stradale SC/1 - Shop Mancini

Catalogo prodotti

TEM Elettromeccanica - Progettazione, prototipazione ...

TEM Elettromeccanica - Progettazione, prototipazione ...

KIT ARMADIO C3M + BASAMENTO

Malta per riparazioni: Muffole elettriche prezzi

FiberMap: Come calcolare la distanza dalla propria ...


0 komentar:

Posting Komentar